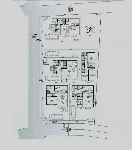
株式会社 ADVANCE > (戸建(売買))路線・駅から探す > 都営地下鉄都営大江戸線 > 光が丘駅 > 練馬区土支田1丁目新築戸建全6棟。(練馬101期)残3棟。
浴室乾燥機のあるお風呂場は洗濯物を干すときにも便利です。日常生活で利用頻度の高い水回りだからこそ、使い勝手のいいシステムキッチンを選んでみませんか。設備も充実している新築戸建ての物件はいかがでしょうか。広々としたリビングに充実設備のキッチンを備えた3LDK。当社では、練馬区にある不動産情報を数多くご用意しております。お引っ越しをお考えの方は、この機会にぜひご連絡ください。
※写真や図と実際の現状とが異なる場合は現状を優先させていただきます。











(※元利均等方式 金利5.00%まで ※返済年数5~50年まで入力できます)
(※ボーナスは年2回で計算しています。1000万円まで入力できます)
(※物件購入時、その他諸費用が発生する場合がございます)
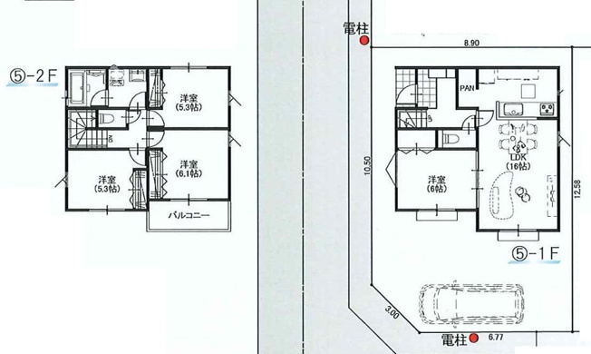
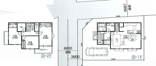
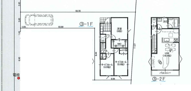
| 所在地 | 東京都練馬区土支田1丁目15-14 | ||
|---|---|---|---|
| 交通 | |||
| 間取り/詳細 |
3LDK/ 洋室 6.0帖 1室/洋室 5.5帖 1室/洋室 4.5帖 1室/LDK 16.5帖 1室 |
建物面積(坪数) | 79.37㎡(24坪) |
| 価格 | 7,290万円 | ||
| 駐車場/月額料金 | -/- | ||
| 土地の敷金/保証金 | -/- | 借地料/借地期間 | -/- |
| 土地権利 | 所有権 | 土地面積(坪数) | 101.00㎡(30.55坪) |
| 傾斜地部分面積 | - | 路地状敷地 | - |
| 私道負担面積/セットバック | -/無 | 高圧線下面積 | - |
| 地目/地勢 | -/- | 接道状況 | -(西 公道 4.0m) |
| 建ぺい率/容積率 | -/- | 用途地域 | - |
| 都市計画 | - | 種別/構造 | 新築一戸建/木造 |
| 階建 | 2階建 | 築年月(築年数) | 2025年 12月 (予定) |
| 総区画数/販売区画数 | 6区画/3区画 | 向き | - |
| 現況 | 未着工 | その他の法令上の制限 | - |
| 取引態様/引渡時期 | 仲介/相談 | 建築確認番号 | 第1号 |
| 物件番号 | 96224572 | 取引条件の有効期限 | 2025年11月24日 |
| 設備条件 |
|
||
| 備考 | 通学区域内の小学校は練馬区立豊溪小学校で徒歩7分です。システムキッチン付きの物件です。新築戸建てで新生活を始めてはいかがでしょうか。TVインターホン付きでお子様のお留守番も安心です。練馬区での暮らしを、ADVANCE (アドヴァンス)と一緒に始めましょう。お電話でのお問い合わせは、0120-9292-56から受け付けております。 | ||
| 取扱会社 |
|
||
| QRコード |
このQRコードを読み取ることで、スマホでも物件情報を確認できます。 |
||
※地図上に表示される物件の位置は付近住所に所在することを表すものであり、実際の物件所在地とは異なる場合がございます。